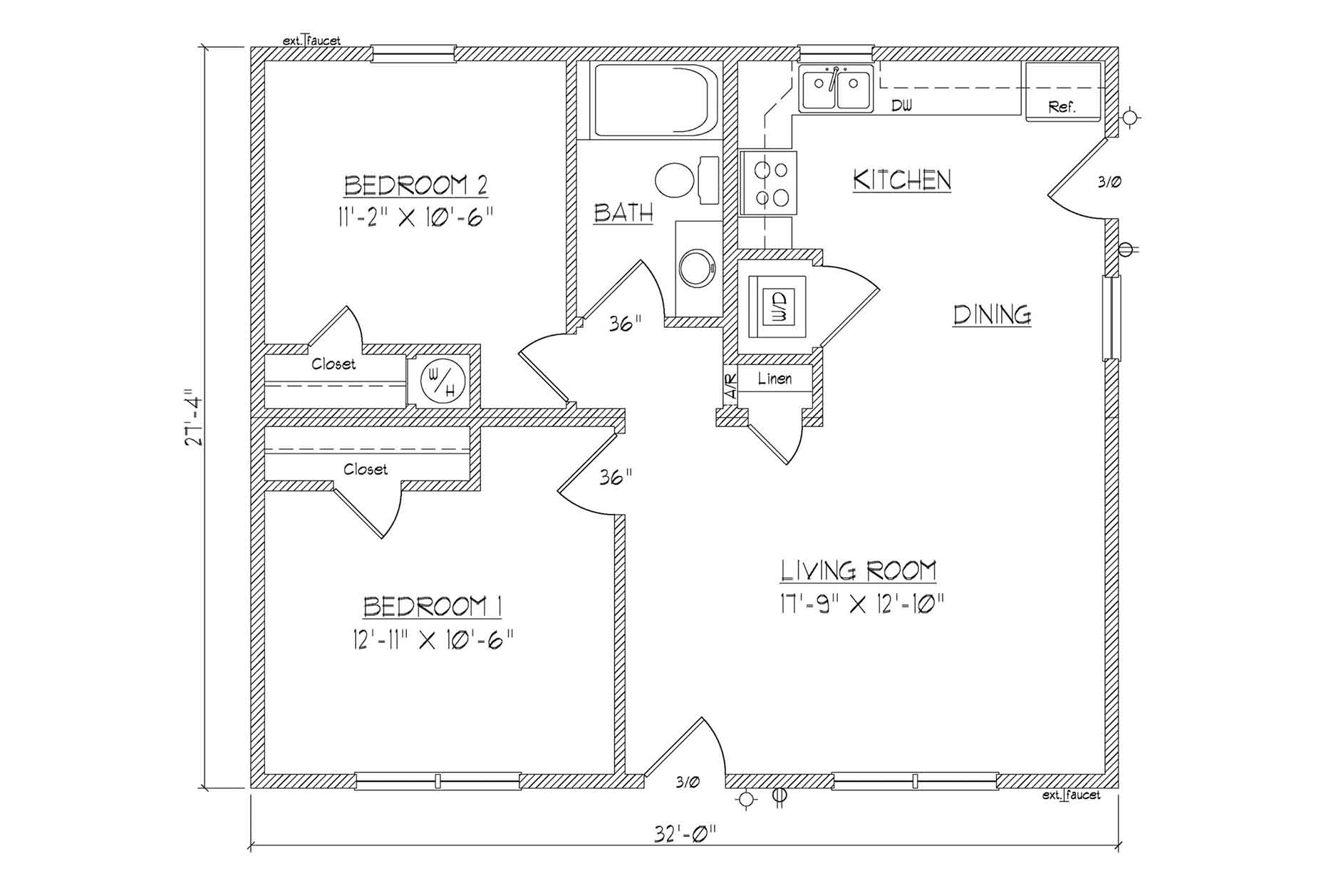
Virginia Cottage
2 Bedroom Modular Home Floor Plan in Washington, North Carolina

Virginia Homes of Boydton
Modular
*Some exterior features shown and listed are optional. All features and options shown may not be available on all models. Please check with your Home Consultant for availability and pricing.
875

Square Feet

2

Bedrooms

1

Bathrooms

Floor Plan Details

Share this floor plan.

Unlock Pricing On This Home

Gallery

Click images to enlarge. Some images may not be of actual lot model.

All sizes and dimensions are nominal or based on approximate builder measurements. Down East Realty & Custom Homes reserves the right to make changes due to any changes in material, color, specifications, and features anytime without notice or obligations.
All prices are subject to change without notice – view our Disclaimer.

Scroll to Top