Caroline

Holmes Building Systems
Modular
On Display
A single-story modular home with beige siding, black shutters, and a small front porch with steps.
*Some exterior features shown and listed are optional. All features and options shown may not be available on all models. Please check with your Home Consultant for availability and pricing.
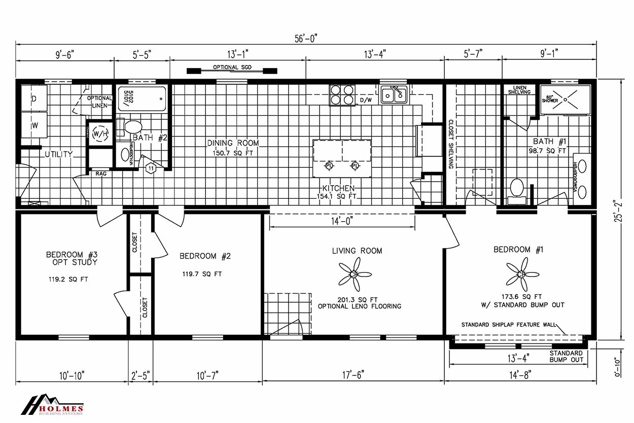
1420

Square Feet

3

Bedrooms

2

Bathrooms

Floor Plan Details

Kitchen Island
Walk-in Shower
Share this floor plan.

Unlock Pricing On This Home

Gallery

Click images to enlarge. Some images may not be of actual lot model.

All sizes and dimensions are nominal or based on approximate builder measurements. Down East Realty & Custom Homes reserves the right to make changes due to any changes in material, color, specifications, and features anytime without notice or obligations.
All prices are subject to change without notice – view our Disclaimer.

See How This Modular Home Floor Plan Becomes a Home

Envision experiencing comfortable living in the heart of the Caroline modular home. This 1,420-square-foot abode thoughtfully combines practicality with style, making it a perfect oasis for families seeking a harmonious lifestyle. With its clever layout and carefully curated spaces, this modular home embraces the essence of modern living, catering to your family’s needs and dreams.

Step inside, where you’ll find a world of bright, inviting spaces awaiting you. The open-concept design seamlessly connects the living, dining, and kitchen areas, creating a cohesive space for relaxation, entertainment, and family gatherings. Natural light floods the living room through large windows, creating a warm, welcoming atmosphere ideal for any homebuyer in Washington, North Carolina, and nearby areas seeking comfort and style.

Highlights of the Caroline include:

  • Spacious Living Area: An inviting living room serves as the heart of the home, promoting effortless movement between living spaces.
  • Gourmet Kitchen: A stylishly appointed kitchen featuring modern appliances, generous countertops, and ample cabinetry offers functional design and ease of use.
  • Dining Area: The adjacent dining area, perfect for family meals or entertaining guests, seamlessly connects the kitchen and living areas.
  • Private Bedroom 1: A serene master bedroom, complete with an en-suite bath, provides a private retreat to unwind after a busy day.
  • Two Additional Bedrooms: These rooms offer flexibility for children’s rooms, guest spaces, or a home office.
  • Secondary Bathroom: A full bathroom, located conveniently between the additional bedrooms, caters to guests and household needs with ease.
  • Convenient Laundry Room: A Dedicated laundry space ensures functionality and simplicity in household chores.

Families or individuals searching for a modular home in Washington, NC, will appreciate the thoughtfulness that goes into each design element of the Caroline. This residential option offers a balanced lifestyle that combines convenience and flair.

Apart from its functional interior, the Caroline boasts an exterior designed to impress with style and durability in mind. Proper insulation and high-quality materials ensure a comfortable living experience year-round.

Why choose the Caroline modular home?

  • Customizable Options: Tailor the home to suit your preferences and design aesthetics, ensuring a personalized living experience.
  • Rapid Construction: Enjoy reduced build times thanks to the manufactured nature of the home, providing faster transition to occupancy.
  • Affordable Luxury: Offers the best of both worlds by combining quality with an attractive price point, making it accessible for first-time homebuyers and seasoned owners alike.
  • Community Setting: Ideal for family-friendly neighborhoods, providing a secure environment for raising children or enjoying companionship with neighbors.

The design’s versatility addresses the diverse needs of modern households, making life seamless and enjoyable. Explore the potential of the Caroline if expanding family dynamics or lifestyle changes are on the horizon.

Take the next step and explore the affordable luxury of the Caroline. Connect with professionals in Washington, North Carolina, to learn more about this compelling modular home offering. Begin your journey to homeownership with confidence, knowing that this distinctive floor plan caters to your desires and expectations for living spaces.

Contact our home experts today to discover more about the Caroline and schedule a viewing. Uncover your dream home today and delve into the possibilities that await you.

Scroll to Top